"Hilka" - 75m from the sea in NW Jutland
Løkken, Dinamarca
"Hilka" - 75m from the sea in NW Jutland [IH]interhome
Løkken, Dinamarca
			Casa unifamiliar del año 1973. A 75 m del mar. Privado: terreno en estado natural 1'020 m2. Terraza (110 m2). En el inmueble: lavadora. Aparcamiento junto a la casa. Tienda de comestibles 850 m. El propietario no acepta grupos de adolescentes/jóvenes.
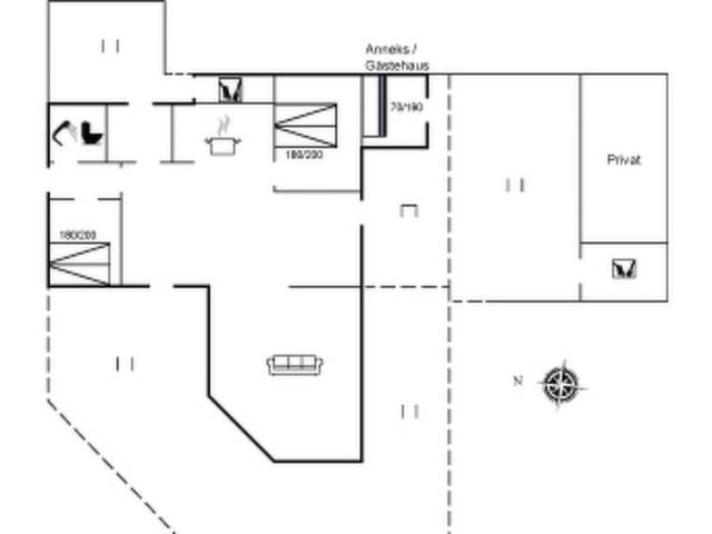
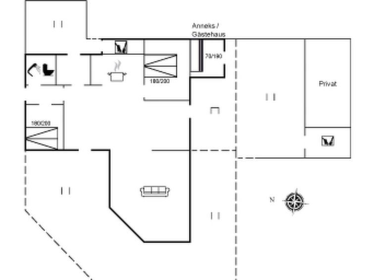
"Hilka" - 75m from the sea in NW Jutland", casa 3 estancias 102 m2. Vivienda adecuada para 6 adultos. Salón con TV y radio. 1 dorm. con 1 cama doble. Estudio 1 dorm. con con 1 x 1 literas, 1 cama doble. Cocina (horno, lavavajillas, 4 placas de vitrocerámica, microondas, congelador). Ducha/WC. Terraza 15 m2, cubierta. El alojamiento dispone de: trona. Internet (Wifi). A tener en cuenta: apartamento para no fumadores. Permitido máximo 2 mascotas / perros.
			
		
		Limpieza finalCocina equipadaLavavajillasMicroondasAparcamientoTerrazaLavadoraTV
		
		
		
	 
															 
															 
															 
															 
															 
															 
															 
															 
															 
															 
															 
															 
															 
															 
															 
															 
															